In absoluter Alleinlage, eingebettet in eine traumhafte Gartenlandschaft mit herrlichem Panoramablick, erwartet Sie dieses außergewöhnliche Anwesen in Ligneuville bei Malmedy. Ein echtes Paradies für Naturliebhaber, Ruhesuchende und alle, die das Besondere schätzen.
Das freistehende Haus bietet mit rund 200 m² Wohnfläche und einem Grundstück von ca. 14.500 m² außergewöhnlich viel Raum zum Leben, Entspannen und Genießen – als Hauptwohnsitz oder luxuriöser Rückzugsort.
Highlights auf einen Blick:
– Gesamtgrundstück ca. 14.500 m² – weitläufig, sehr gepflegt und komplett erschlossen
– Wunderschön angelegte Gartenanlage mit altem Baumbestand – u. a. prächtige Eichen und Buchen
– Reich bepflanzte Blumen- und Rosenbeete sowie zahlreiche Ziersträucher und Obstbäume
– Eigene Wasserquelle im Garten
– Weiher mit Goldfischen und Forellen
– Außenpool mit Sonnenterrasse
– 4 Schlafzimmer für Familie oder Gäste
– Helles Wohn- und Esszimmer mit großen Schiebetüren und direktem Blick ins Grüne
– Panoramafenster mit traumhaften Ausblicken in alle Himmelsrichtungen
– Badezimmer aus edlem Marmor
– Echtholzparkett in den Wohnbereichen
– Treppenlift – barrierearmer Zugang zur oberen Etage
– Ausgebauter Dachboden – ideal als Hobbyraum oder Atelier
– Terrasse mit Markise
– Garage und Carport
– Sehr gute Isolierung – energetisch effizient
– Absolute Privatsphäre – kein direkter Nachbar, kein Durchgangsverkehr
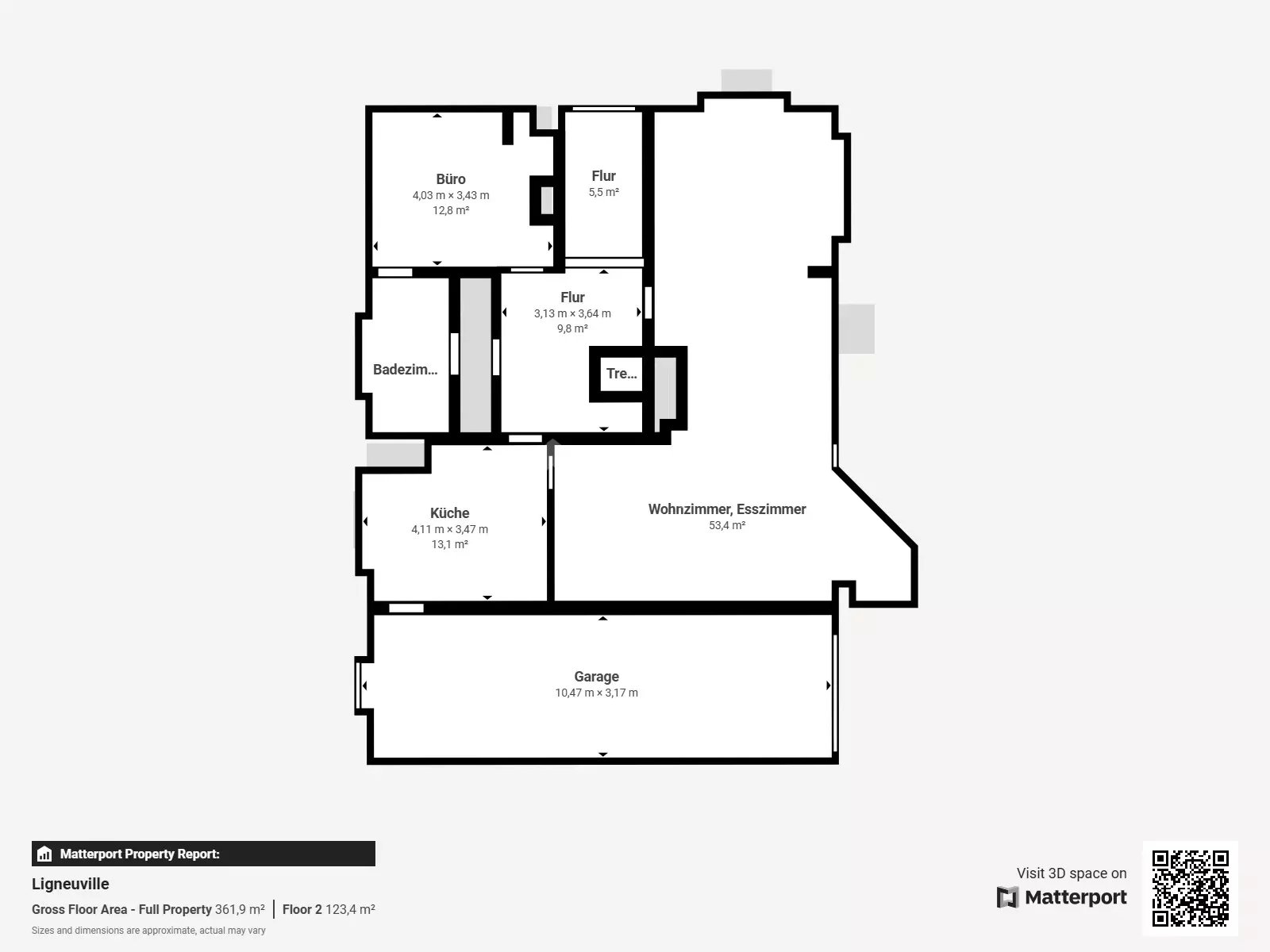
Raumaufteilung im Detail:
Kellergeschoss: 2 Technikräume (34,60 m² & 12,32 m²) – Flur (17 m²) – 3 Kellerräume, darunter ein Weinkeller (12,5 m², 8,51 m² & 11,73 m²)
Die Immobilie befindet sich in Ligneuville, einem ruhigen Ortsteil von Malmedy. Nur wenige Minuten von der Stadt entfernt – mit ihrem vielfältigen Angebot an Restaurants, Geschäften, Schulen und Freizeitmöglichkeiten – und dennoch in vollkommener Ruhe gelegen.
Die Autobahnanbindung in Richtung Lüttich, Aachen oder Luxemburg ist bequem erreichbar. Die Region rund um das Hohe Venn bietet zudem zahlreiche Wander- und Naturerlebnisse direkt vor der Haustür.
Einzigartig in Lage, Ausstattung und Lebensqualität: Dieses Anwesen vereint Naturidylle, Privatsphäre und gehobenen Wohnkomfort – ideal für alle, die Ruhe und Großzügigkeit in einem stilvollen Umfeld suchen.
Kontaktieren Sie uns gerne für weitere Informationen oder eine persönliche Besichtigung – dieses Haus wird Sie begeistern! +32 80 60 50 20
Wir verwenden Cookies auf unserer Website, um Ihnen ein relevanteres Erlebnis zu bieten, indem wir uns an Ihre Präferenzen und wiederholten Besuche erinnern. Indem Sie auf "Akzeptieren" klicken, stimmen Sie der Verwendung ALLER Cookies zu. Sie können jedoch die Cookie-Einstellungen besuchen, um eine kontrollierte Zustimmung zu erteilen.
Diese Website verwendet Cookies, um Ihre Erfahrung zu verbessern, wenn Sie auf der Website surfen. Von diesen Cookies werden die als notwendig eingestuften Cookies auf Ihrem Browser gespeichert, da sie für den Betrieb der Grundfunktionalität der Website unerlässlich sind. Wir verwenden auch Cookies von Dritten, die uns helfen zu analysieren und zu verstehen, wie Sie diese Website nutzen. Diese Cookies werden nur mit Ihrer Zustimmung in Ihrem Browser gespeichert. Sie haben auch die Möglichkeit, diese Cookies abzulehnen. Die Deaktivierung einiger dieser Cookies kann jedoch Ihr Surferlebnis beeinträchtigen.
Analytische Cookies werden verwendet, um zu verstehen, wie Besucher mit der Website interagieren. Diese Cookies liefern Informationen über Besuchermetriken, Absprungrate, Verkehrsquelle usw.
Cookie
Dauer
Beschreibung
_ga
2 years
Dieses Cookie wird von Google Analytics gesetzt. Dieses Cookie wird verwendet, um Besucher-, Sitzungs- und Kampagnendaten zu berechnen und um die Nutzung der Website für Website-Analyseberichte zu verfolgen. Die Cookies speichern Informationen anonym und weisen eine zufällig generierte Nummer zu, um eindeutige Besucher zu identifizieren.
Noodzakelijke cookies zijn absoluut noodzakelijk voor de goede werking van de website. Deze cookies zorgen op anonieme wijze voor de basisfunctionaliteit en de veiligheidskenmerken van de website.
Cookie
Dauer
Beschreibung
__cfduid
1 month
Dieses Cookie wird von cdn-Diensten wie CloudFare verwendet, um einzelne Clients hinter einer gemeinsamen IP-Adresse zu identifizieren und Sicherheitseinstellungen auf individueller Basis anzuwenden. Sie stimmt nicht mit einer Benutzer-ID in der Webanwendung überein und speichert keine personenbezogenen Daten.
_GRECAPTCHA
5 months 27 days
Dieses Cookie wird von Google gesetzt. Zusätzlich zu einigen Standard-Cookies von Google setzt reCAPTCHA ein notwendiges Cookie (_GRECAPTCHA), wenn es zum Zweck der Bereitstellung seiner Risikoanalyse ausgeführt wird.
cookielawinfo-checbox-analytics
11 months
Dieses Cookie wird von dem GDPR-Cookie-Zustimmungs-Plugin gesetzt. Es wird verwendet, um die Zustimmung des Benutzers für Cookies der Kategorie "Notwendig" zu speichern.
cookielawinfo-checbox-others
11 months
Dieses Cookie wird von dem GDPR-Cookie-Zustimmungs-Plugin gesetzt. Dieses Cookie wird verwendet, um die Zustimmung des Benutzers für Cookies der Kategorie "Andere" zu speichern.
cookielawinfo-checkbox-necessary
11 months
Dieses Cookie wird von dem GDPR-Cookie-Zustimmungs-Plugin gesetzt. Es wird verwendet, um die Zustimmung des Benutzers für Cookies der Kategorie "Notwendig" zu speichern.
viewed_cookie_policy
11 months
Dieses Cookie wird vom GDPR Cookie Consent Plugin gesetzt und dient dazu, zu speichern, ob der Benutzer der Verwendung von Cookies zugestimmt hat oder nicht. Es werden keine personenbezogenen Daten gespeichert.